Пила КТ-400, (Финляндия), для полутуши, ленточная односкоростная, предназначена для резки мяса, рыбы, костей, и другой продукции в замороженном и в свежем состоянии.Применяется для универсального использования на бойнях, супер и гипермаркетах, предприятиях помясопереработке.Пила снабжена скользящим ...
Компактная ленточная пила с электрическим приводом для распиловки на полутуши туш свиней икрупного рогатого скота, предназначена для использования на предприятиях малой и средней мощности. Встроенная система циркуляции холодой воды - для охлаждения и мойки пильного полотна. Низкий уровень шума и виб...
Стіл для обробки міхурівсвиней/КРС/МРС призначений для обробки, надування міхурів свиней/КРС/МРС.Комплект на 6 робочих місць, (2 розміщені паралельно столи по 3 місця). До кожного робочого місця за допомогою труб підводиться повітря (Калібровочні крани в комплекті не йдуть).Між столами знаходиться л...
Установка состоит из рамы, бака, активатора, шпиндельного узла, клиноременной передачи,сливаи электродвигателя.Бак состоит из дна, стенки, ребер, конуса, крышки и дверок. Бак снабжен бесконтактными датчиками боковых дверок и крышки, которые блокируют работу с открытыми дверками и крышкой. Бак к раме...
Стригти доводиться всіх овець, незалежно від породи і призначення.Тому машинка для стрижки овець - незамінні інструменти в господарстві будь-якого вівчаря. Стрижка потрібна всім вівцям. Навіть м'ясні або курдючні породи, які розводять зовсім не зарадивовни, потребують цій процедурі.Якщо залишити зро...
Ножи гребёнки для стрижки овец советского производства Новые в солидоле
Стіл з стрічковим конвеєром для обвалки м'яса.Довжина загальна: 6.00 мШирина загальна : 2,16 мВисота: 0,95 мШирина конвеєрної стрічки: 0,81 м Ширина стільниці: 0,43 мПривід: двигун 0.8 кВт, редуктор на 2 швидкості.067-373-0517
Предназначен для разделки, обвалки и переработки полутуш КРС,свинейили туш МРС.Линии для обвалки мяса предназначены для разделки и сортировки свинины,говядины, рыбы и т.д.Каждая линия для обвалкии жиловки мяса комплектуется индивидуально, исходя из специфики производства и требуемых мощностей. По же...
Мы французская компания FAF,уже более 50-и лет мы занимаемся производствомоборудования для убоя птицы, а также оборудования дляоткорма уткина фуа-гра. К нам поступают запросы из Украины о закупке нашего оборудования, в связи с чем мы ищем партнеров продавцов нашего оборудования в Украине.Вы можете с...
Данный комплект оборудования предназначен для установки на участке убоя сельскохозяйственнойптицыпри среднем объеме производства 100 тушек куры в час. Минимальная площадь помещения должна составлять 30 м2. Обслуживающий персонал такой бойни составляют 4-5 человек.Несмотря на то, что большинство опер...
Назначение и конструкция: Все компактные разделочные линии изготавливаются с учетом потребностей клиента. Они обеспечивают высокую точность разреза при высокой скорости линии. Компактные разделочные линии производят аккуратную разделку до 6,000 птиц в час. Компактные разделочные линии достаточно уни...
Предприятие поставляетоборудование для убоя птицы.Предлагается как комплекс с проектом под ключ, так и отдельные узлы и запчасти. В наличии новое и бу оборудование европейских производителей.Наш сайт: www.ptahivnyk.com.ua
Компанія пропонує обладнання для фермерського виробництва малозабійної птиці. **Перосъемна машина** Ця перосъемна машина, виготовлена французькою компанією, що гарантує надійність та високу якість. Перосъемна машина призначена для зняття оперення з тушок курей, качок, гусей, індиків та інших птахі...
12% БМВД FLS 60 115/12/30 - фініш для поросят живою вагою від 60 кг до забою, ТМ Feedline, ПРЕМІУМ ЛІНІЯ
ПП "ВЕЛМАРК М" предлагает комплексные линии по убою и переработке крупного и мелкого рогатого скота, атакже свинейи домашних птиц, в том числе: боксы оглушения особой конструкции, которые в сочетании с фиксацией головы животных методом щадящего оглушения дают почти 100% эффективность и обеспечивают ...
Наша компанія готова виготовити Вам лінію для забою птиці продуктивністю до 300 голів за годину. Лінія складається з двох окремих кругових підвісок – транспортерів, ванни шпарення, ванни охолодження, центрифуги. Лінія дозволяє:- робити електро глушіння птиці;- робити обезкровлення тушки птиці;- вико...
Предприятие поставляет оборудование для забоя птицы на фермерских хозяйствах. Наше оборудование ощипывает все виды птицы отперепеладо гуся. Мягкие перосъемные пальцы не снимают желтую поверхность кожиптицы делаякачество ручного ощипа. Поставляем как комплекс оборудования , так и отдельные элементы и...
Продадим троллеи для подвесного пути.Так же продаем профессиональное оборудование для мясопереработки, колбасных цехов, убой, разделка, производства и замешивания мясного, рыбного фарша (волчки, куттера, шприцы,фаршемешалки,термокамеры, инъектора, массажеры, упаковка, др. ). Поставка запасных частей...
Устройство гуманного оглушения скота "Karl Schermer" предназначено для эффективного оглушения (приведения в бессознательное и обездвиженное состояние) животных перед убоем. Устройство пороховое Karl Schermer KC — применим для метода "Халяль" для оглушения без проникновения стержня в лобную часть гол...
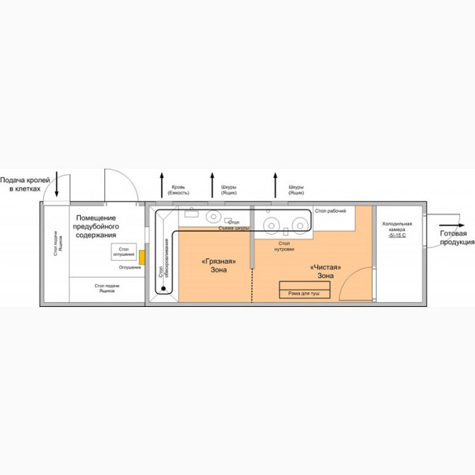
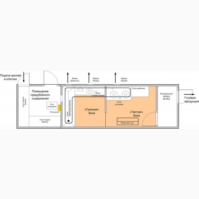
• Зона убоя (грязный цех) – где происходит закалывание кроликов надрезом горла и обескровливание;• Зона обработки (чистый цех) с холодильником для хранения продукции.Производительность: 1000 голов в смену (120 голов в час)Функциональность: Анатомическая распиловкаУпаковка в вакуум (возможно ГМС)Упак...
4
2 295 грн.
доставка з м.Суми
Датчики норми висіву для будь-яких сівалкок, де можливо встановити датчики у насіннєпровід або сошник, незалежно від типу: овочеві сівалки, пропашні, зернові, комбіновані, сівалки для трав і газонів, ...
3
20 670 грн.
доставка з м.Суми
Для будь-якого обприскувача, більше інформації на сайті AGXON.COM
3
15 894 грн.
доставка з м.Суми
Для будь-якого обприскувача, більше інформації на сайті AGXON.COM
